kras-resort

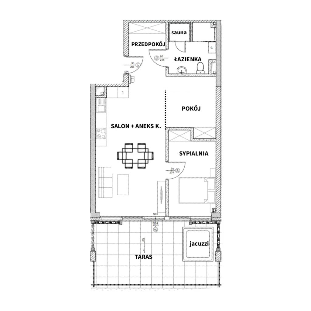
Apartament 103

Budynek: Kryształ

Powierzchnia użytk.

59,80 m2

Taras

23,50 m2

Status

Dostępny

Poziom

1

Lista pomieszczeń:

PRZEDPOKÓJ: 6,99 m2
SALON+ANEKS K.: 26,54 m2
ŁAZIENKA: 6,80 m2
POKÓJ: 8,24 m2
SYPIALNIA: 10,64 m2

Pobierz plan w PDF:

Zapytaj o ten apartament

Lokalizacja

ul. Górna 33

58-580 Szklarska Poręba

Kontakt

+48 514 115 100

info@kras-resort.pl

Copyright © 2021 kras-resort

Powered & Designed by SR